Практичний дизайн: ергономіка спальні - поради + схеми

Спальня – одна з найважливіших кімнат у будинку. Якщо вона зручна і комфортна, будь-які маніпуляції приносять радість і не викликають роздратування. У типових квартирах на рахунку кожен сантиметр житла, тому при плануванні дизайну спальні важливо врахувати, наскільки комфортно вам буде користуватися меблями день від дня. Наприклад, будуть висуватися ящики і відкриватися дверцята, достатньо місця для проходу між ліжком і стіною, зручно прибирати постіль. Розповідаємо, як максимально ефективно використовувати корисну площу, не забуваючи про комфорт відпочиваючих людей.
1. Вибираємо розмір ліжка
Ліжко всьому голова. Ідеальне місце для неї – неподалік від вікна і подалі від дверей. Насамперед треба визначитися з розмірами спального місця: є простий спосіб дізнатися підходящу для себе довжину ліжка – для цього потрібно додати до свого зростанню 30 див.
Найбільш часто зустрічаються стандартні розміри – це 200 см і 190 см. Ширина односпальним ліжка коливається від 90-100 см — комфортно в ній буде школяреві і підлітку. А ось для дорослого вже варто доглянути «полуторку»: ви зможете чудово виспатися в таких умовах — не доведеться крутитися, ні прокидатися від дискомфорту і тісноти.

Парам варто звернути увагу на двоспальні ліжка — тут вибір розмірів у вітчизняних, європейських і американських виробників вражає уяву. Модель Queen може похвалитися комфортним спальним місцем для подружжя ширини 150 см достатньо для того, щоб не турбувати уві сні свою другу половинку. Якщо хочете відчути себе в королівських умовах, вибирайте ліжка типу King — їх ширина коливається від 180 до 200 див.
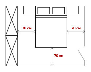
2. Залишаємо місце для проходу
Для зручного і комфортного пересування по кімнаті необхідно врахувати розміри проходів. Відстань від краю ліжка до стіни або шафи з розсувними дверцятами повинна бути не менше 70 див. Такий прохід до ліжка дозволить вам з комфортом роздягтися і лягти. Якщо ліжко двоспальне, залиште такі проходи з обох сторін. Заправляти ліжко і міняти постіль в цьому випадку буде легше.

Якщо кімната не дозволяє зробити таке планування — поставте двоспальне ліжко однією з боковин до стіни. У цьому випадку вільне місце повинно бути в ногах — щоб людині, спить біля стіни, не довелося перелазити через свого партнера, тривожачи його сон.
3. Розставляємо меблі в дитячій
Починайте розстановку меблів в дитячій з однієї або двох ліжок. Незважаючи на те що діти з додаванням менше дорослих, не зменшуйте відстань проходів – залиште для них не менш 70 див. Підростаюче покоління більш активне, і в заставленій меблями кімнаті синці їм забезпечені.

Поставте між ліжками тумбочку або невеликий стелаж, прохід повинен бути не менше 56 см – щоб було зручно стелити постіль і забиратися.
4. Організуємо робочу зону
Часто спальня — це не тільки місце для сну, але і робочий кабінет. Якщо ви плануєте поставити в кімнаті додатковий стіл і стілець, не забувайте про комфорт і здоров'я. Прилади не повинні знаходитися у безпосередній близькості від ліжка. Потрібно видалити комп'ютерний стіл як мінімум на 1 метр від узголів'я. І передбачити місце, необхідне для відсунення стільця.

Такі ж відстані бажано дотримуватися при облаштуванні будуара – не ставте туалетний столик впритул до ліжка.
5. Розміщуємо комод або шафа
Просто «втиснути» комод або шафа в простір спальні недостатньо — потрібно обов'язково передбачити місце для їх комфортного використання. Щоб обчислити, де поставити комод, потрібно враховувати ширину самого предмета меблів (50,8–61 см), його ящиків (40,6–50,8 см) і додати до них близько 45 см для підходу. Майте на увазі, що для відкривання нижніх ящиків потрібно більше місця – для здійснення цих маніпуляцій вам доведеться сісти. Оптимальна відстань між комодом і краєм ліжка – 157-180 див.

Так само розраховується місце для шафи з дверцятами – необхідно передбачити мінімум 80 см вільного простору для відкривання. Близько 50 см «з'їдає» відкрита стулка, ще 30 см – прохід вздовж неї.
Зв'яжіться з нами і ми допоможемо створити комфортний і функціональний дизайн Вашого житлового простору.
ПУБЛІЧНИЙ ДОГОВІР ПРОДАЖ (ОФЕРТА)Продавець, публікує в даний Публічний договір, що є офіційною пропозицією (офертою) будь-якій фізичній або юридичній особі, що надалі іменується, як Покупець, укласти договір купівлі-продажу товарів на відстані. Даний договір укладається шляхом надання згоди Покупця на приєднання до запропонованого Договору в цілому, шляхом акцепту (прийняття) всіх істотних умов Договору, без підпису письмового примірника Сторонами. Дійсний Договір має юридичну силу відповідно до ст. 633 ЦК України.Повна версія статті
Dolby Theatre - жемчужина ГолливудаПлощадь здания Dolby Theatre составляет около 17 тыс. квадратных метров, оно рассчитано на 3400 мест, высота потолков - около 26 метров. Здание в четыре раза больше расположенного по соседству Китайского театра TCL (ранее Китайский театр Граумана).Повна версія статті


